Departamento 4 Amb. Apto Profesional - 88m2 - Reciclado A Nuevo

0 646
USD 185,000
Venta
4 years ago
-

Description

Juan - 1565213700

Dueño Vende Departamento 4 Ambientes APTO PROFESIONAL - Reciclado a Nuevo - Ubicado en Recoleta, Av. santa fe 2271.
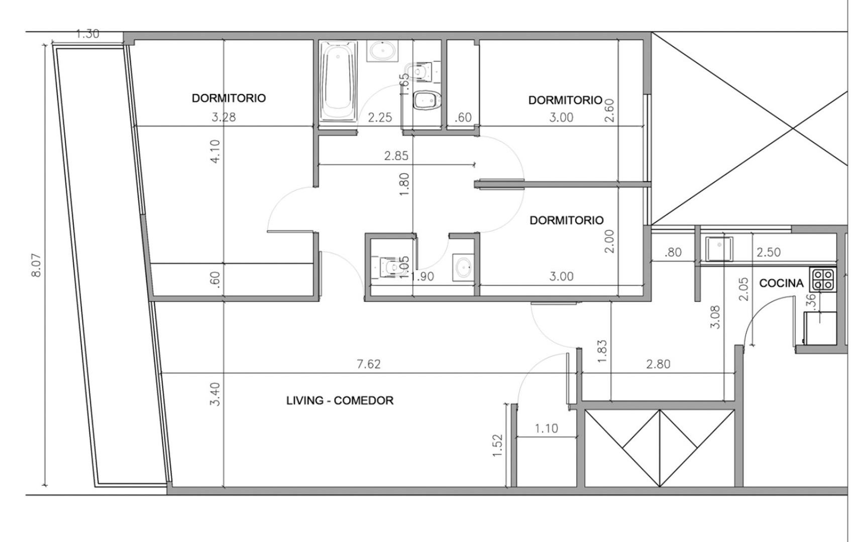
Edificio de 13 pisos en excelente ubicación. El departamento se encuentra en un piso 5 dispuesto al frente. Ambientes sumamente luminosos. Reciclaje a nuevo de pisos, cocina, baños incluyendo los caños de agua. Cuenta con entrada Principal y Entrada de Servicio. Living Comedor al frente, con salida al balcón corrido- Cocina Independiente con ventilación al exterior, mesada de granito muebles bajo y sobre mesada, artefacto de cocina eléctrico a estrenar, 3 Dormitorios.- Baño completo.- Toilette. Agua caliente por caldera central. Calefacción central. Vigilancia diurna, portero permanente.

Medidas de los ambientes: Living:7,60x3,40mts. Cocina: 2,50x2,00 mts. Lavadero 0,80x 2,00mts.- Comedor Diario: 2,80x1,80mts Dormitorio principal: 4,10x3,28mts. Dormitorio Secundario:3,00x2,60 mts Dormitorio Secundario o Escritorio: 3,00x2,00mts.-
Baulera en subsuelo del edificio: 2,00x1,00mts.- Expensas: $40.000.- aproximadamente

Información adicional

Dormitorios 3
Baños 1
Ambientes Toilette

Location

Location Av. Santa Fe 2200, Buenos Aires, Argentina